DEPA NH

Remodelación de departemento

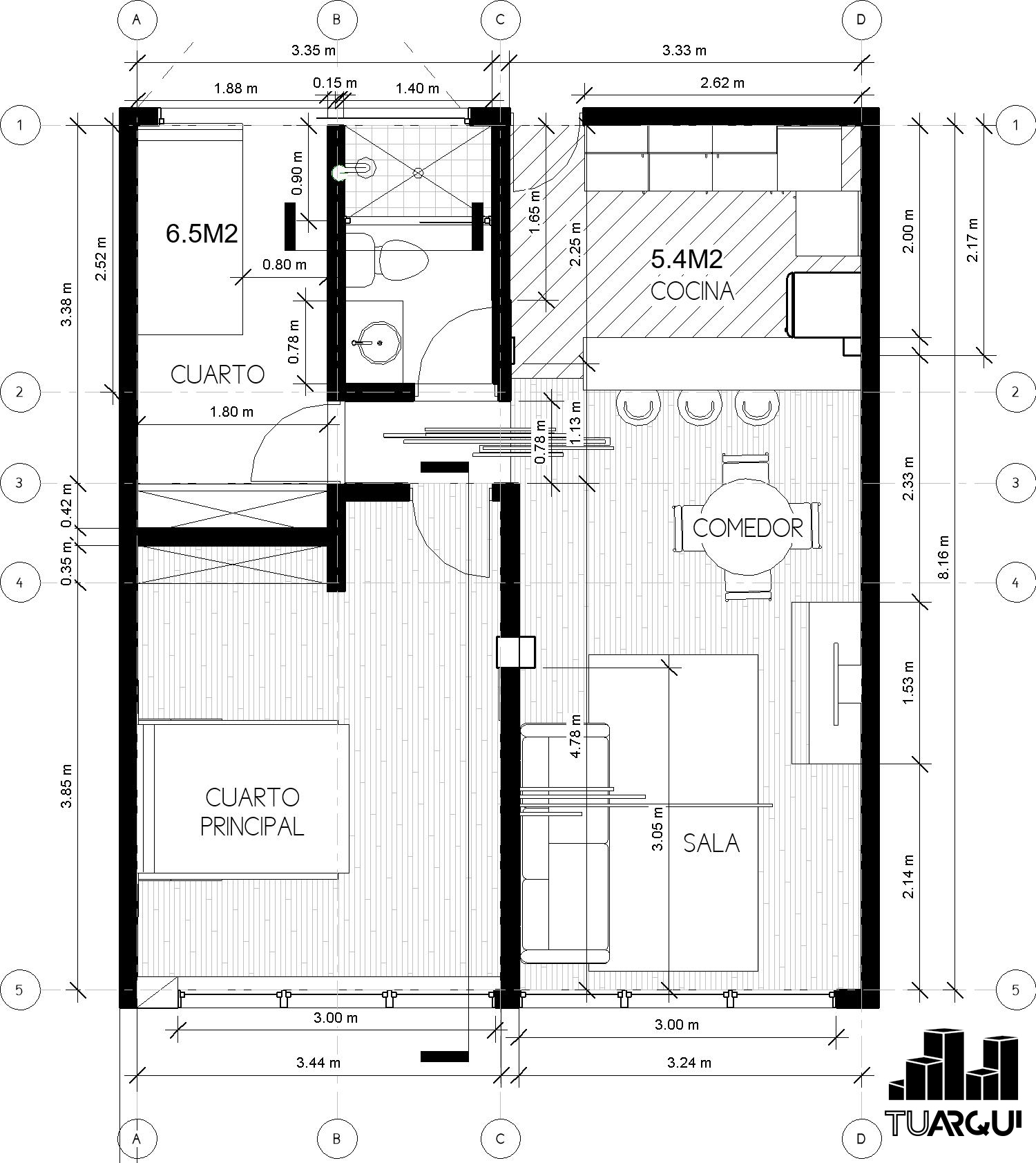
En este proyecto se cumplieron con varias peticiones del cliente las cuales eran dividir un cuarto de baño en medio cuarto y medio baño y así poder tener un cuarto extra. Para lograr esto se debió de adaptar la instalación hidráulica y partir a la mitad una ventana esto con el beneficio de reusar materiales y reducir el gasto, se usaron paneles de Durock para evitar la humedad y se trató de rescatar lo más que se pudo la loseta. Se colocó una cocina nueva con loseta nueva e instalaciones nuevas. En el cuarto principal se le dio mantenimiento a un vitral y se le creo una estructura de metal para que tuviera la opción de abrirse como ventana. Se diseñaron dos módulos de lámparas para la sala y el pasillo, se cambió toda la instalación eléctrica. Se pintaron y resanaron muros.